根據《JJF 1559-2016變頻電量分析儀校準規范》對變頻電量分析儀電流校準方法的規范,電流的校準方法包括標準源法和標準表法,實際使用時,可以根據情況選擇合適的方法進行實驗。實際實驗時可以根據實際情況選擇合適校準方法進行。
一變頻電量分析儀電流校準校準點選擇
在分析儀電流量程范圍內(包括量程上限值在內)均勻選取不少于5個電流校準點,多電流量程分析儀的各量程不少于2個點,優先選擇滿量程、1/2量程、1/3量程;電流信號頻率選擇不少于3個點,優先選擇上限頻率、下限頻率和參考頻率或者典型頻率。
二變頻電量分析儀電流校準標準源法
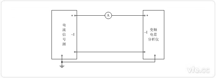
校準接線如圖1 所示。

圖1 標準源法電流校準接線圖
調節標準源的電流、頻率輸出至校準點,讀取標準源輸出電流值IS和被校分析儀電流示值IX,則被校分析儀電流示值絕對誤差
按式(1)計算。
(1)
相對誤差按式(2)計算。
(2)
式中:
——分析儀電流測量顯示值,A;
——電流標準值,A。
三變頻電量分析儀電流校準標準表法
01校準點電流在標準電流表量程范圍內
校準接線如圖2 所示。調節信號源的電流、頻率輸出至校準點,讀取標準電流表示值IS和被校分析儀電流示值IX,則被校分析儀電流示值誤差按式(1)、式(2)進行計算。

圖2標準表法電流校準接線圖
02校準點超出標準電流表量程
采用分流器或電流互感器擴展標準電流表量程的校準接線如圖3、圖4所示。調節信號源的電流、頻率輸出至校準點,讀取標準表示值為AS和被校分析儀電流示值IX,則被校分析儀電流示值絕對誤差按式(3)計算。
(3)
相對誤差按式(4)計算。
(4)
式中:
IX ——分析儀電流測量顯示值,A;
KI ——標準分流器的分流比值,A/V、A/A;
AS ——標準分流器輸出值,V、A。

圖3 電阻分流器擴展量程(V—標準電壓表)

圖4 電流互感器擴展量程(A—標準電流表)
《JJF 1559-2016變頻電量分析儀校準規范》的頒布,規范了變頻電量分析儀電流校準的方法,標準源法和標準表法兩種國標校準方法在實際應用中,根據實際情況選擇相應的項目和方法。
上一篇:電動汽車絕緣檢測一般方法
下一篇:變頻電量分析儀相位校準方法簡介